星案例丨 600㎡新中式別墅,水墨暈染書寫春日驪歌,呈現濃郁的東方情調
2021-08-15 12:00:00
主案設計丨侯立原
項目名稱丨春山舊
項目面積丨660㎡
風格傾向丨新中式
項目地址丨喬建御溪谷



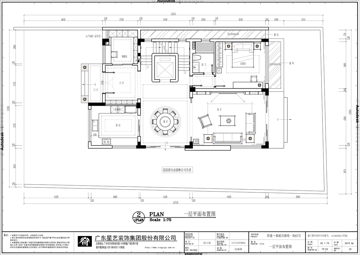
平面布置圖
玄關丨Entryway

玄關部分第一眼讓人感覺沉穩莊重,但另一邊的透明隔斷讓空間厚而不重,用簡化的線條語言勾畫出現代藝術,橫豎平直與古典工藝的碰撞,格調感躍然而出。
客廳丨Living Room

大而不空的客廳層次分明,電視背景墻采用雪花白的大理石墻面,八邊形鏤空窗戶還能看到二樓的中式吊燈,用精巧的設計展現新中式的內涵與雅致,體現出對大意無形,大道至簡的生活追求。
餐廳丨Dining Room
圓桌是最符合中國人大家庭“圍坐”的生活習性,也蘊含團圓之意,在西方寓意為平等,簡約的餐椅點綴明媚的銀杏葉,小鳥都忍不住駐足枝頭,明明是秋季的代表物卻增添出春日的盎然生機。
吧臺丨bar the counter
吧臺用鏤空屏風隔斷劃分出一篇日常的休閑區,吊燈設計的像是連綿起伏的遠山,留白的墻壁用水墨暈染的掛畫裝飾,用中西結合的設計手法營造出山水寫意的美感。
品茗區丨Tea-tasting area
品茶區用圈椅搭配長桌,加上炕桌的設計直接把古典元素拉滿,落地燈上的平安扣在古代稱之為"璧",有養身護體之效。并且水墨畫掛飾之間看似沒有相連卻是同一處美景,分開展示卻毫無違和感,好像一下子進入了煙雨江南的美景之中。
書房丨Study
書房采用燈籠形狀的吊燈的,并且拱門也是一大亮點,用水墨畫與盆栽做裝飾,顯得格外清幽雅致。
衣帽間丨Cloakroom
衣帽間大面積深棕色衣柜和黑色換鞋凳顯得有些沉悶,但白色鑲邊的吊燈和青花元素極好的綜合了整體壓抑的氛圍。
主衛丨Master Guard
主衛大面積的百葉窗和玻璃門來打造出虛實結合,層次分明的空間,在舒舒服服泡澡的時候也能欣賞窗外的風景,開闊的視野更能讓人放松身心。
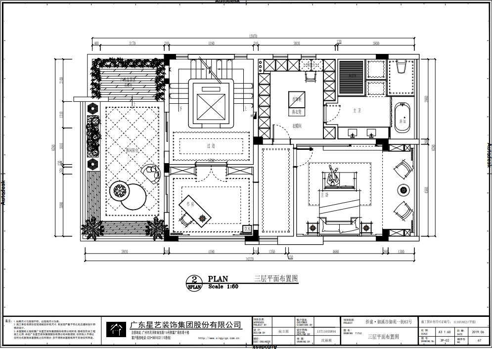
臥室丨Bedroom
主臥
長輩房
女兒房
臥室方面主要采用對稱方正的設計手法,每個房間都都有對應不同年齡段的風格元素,在層疊渲染之中,給人一種深邃寧靜的感官體驗。
關注我們
在線客服
公安部備案號 44010602004978號